Distribution Electrical Substation (Basic)
DISTRIBUTION
SUBSTATIONS
Distribution substations are usually characterized by voltages up to 220 kV on the primary side and 66KV, 33KV, 22 KV, 11 KV & 0.4 KV on the secondary side.
In recent years, the trend has
been toward increasing system voltages. It is becoming more common to eliminate
the intermediate transmission substations and directly reduce the transmission
voltages to primary distribution levels. The distribution substations discussed
are generally limited to the traditional type characterized by simple bus
arrangements and minimal equipment. However, the arrangements can be expanded
for use in larger distribution substations with higher voltages.
Basic Distribution Substation
Figure is a one-line diagram for
a basic distribution substation. Depending on the load being served,
it is possible that initial
construction may be limited to one distribution circuit. The sub transmission
circuit enters the substation through a primary disconnect switch used
principally to isolate the substation from the sub transmission system for
maintenance or when replacement of substation
equipment is required. It is usually of the
three-pole, single-throw, group-operated type
The power transformers commonly used in this application are two-winding type and may be single- or three-phase units. In new substations and when replacing transformers or increasing transformer
capacity, the trend has been
toward using three-phase transformers. In configurations using single-phase transformers,
a fourth transformer may be added as a spare. Use of three-phase transformers
results in a neater and less cluttered arrangement. However, since failure of a
three-phase transformer means loss of the substation, the overall design layout
should provide facilities for the rapid installation of a mobile transformer or
a mobile substation.
The two primary distribution
feeders of the substation are protected by either
power circuit breakers or
automatic circuit reclosers. Disconnect switches on both the source and load sides
permit isolation during maintenance or other periods when complete
de-energization is required. The switches can be either single-pole,
single-throw, hook stick-operated or three-pole, single-throw, group-operated,
depending on the arrangement.
Transformer Primary
Protective Devices
To prevent equipment damage from transformer or low-voltage bus faults, protective devices are generally provided on the primary side of the transformer. These devices may also serve as primary disconnects to enable isolation from the transmission system. Several types of devices are available, including power fuses, circuit breakers, circuit switchers, and vacuum interrupters. Selection of the type of device is based on the voltage, short-circuit conditions, and transformer capacity.
Voltage Regulation
To maintain voltage at a uniform level, voltage regulation equipment is usually required in rural distribution substations. The voltage can be regulated by using either feeder or bus regulation. Feeder regulation may be used in multi-circuit distribution substations, where the circuits are very diverse in load characteristics. With feeder regulation, the voltage of each distribution circuit can be individually maintained to conform to the load characteristics. Bus regulation may be used in rural distribution substations where the distribution feeders have similar load characteristics. Bus voltage may be controlled by using power transformers with load tap changing mechanisms, single- or three- phase voltage regulators, or switched capacitor banks.
To permit voltage regulator maintenance without feeder or bus de-energization, bypass facilities arevprovided as illustrated in Figure
The switches normally used for
regulator bypassing automatically combine all switching operations and perform
them in the correct operating sequence. Each combined switch can usually be
installed in the same space as one single-pole disconnect switch.
“Voltage Regulator Application on Rural
Distribution Systems.”
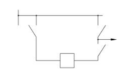
Bypass facilities permit circuit breaker or recloser maintenance or repair without circuit de-energization. illustrates a typical bypass arrangement. The bypass switches usually consist of three independently operated hook stick switches, but a three-pole group-operated switch can also be used. In some applications, it may be desirable to combine some of the switches to facilitate installation. one possible configuration. In this configuration, a tandem switch is used to combine the bypass switch and the load side disconnect switch onto a single switch base. The combined switch can be installed in nearly the same space as onesingle-pole disconnect switch.
To provide circuit protection during bypassing, the bypass switch can be replaced by a fuse A unit substation consists of switchgear electrically and mechanically connected to at least one power transformer. Various arrangements of power transformers and switchgear equipment are available to suit individual requirements.
Use of switchgear, unit substations, and other types of enclosed equipment eliminates the need for extensive field construction since most of the equipment is preassembled by the manufacturer or supplier. Depending on the configuration, the equipment may be shipped completely assembled or in sections to be connected together at the job site. Feeders are normally installed underground from the switch gear compartments. Partial enclosure of some of the low-voltage distribution equipment can be implemented to improve the appearance of the substation. The equipment can be furnished in modular form to facilitate installation. Interconnections between modules are usually underground, although overhead bus duct is occasionally used.
Typical Circuit Breaker/recloser bypass arrangement
Use of Tandem Switches for Circuit Breaker/Recloser Bypassing
Surge Arresters
Transformers, regulators, and other substation equipment are particularly sensitive to transient overvoltages. For the highest degree of equipment protection, surge arresters should be installed as close as practical to the equipment being protected. In most instances, power transformers can be furnished with surge arrester mounting brackets to facilitate installation. Separate arrester stands can also be used, or the arresters can be installed on adjacent switching structures. For voltage regulator applications, the surge arresters are normally installed directly on the regulator tanks. When power transformers are protected by fuses, it is recommended that transformer surge arresters be connected on the line side of the fuses, as close as practical to the power transformers. This will minimize the stress on the fuse and help avoid partial melting of the fuse link when the surge arrester responds to a transient overvoltage.
Enclosed Equipment
In certain applications, particularly when space is at a premium, consider use of switchgear, unit substations, or partially enclosed equipment. Switchgear is a name commonly used in referring to groupings of switching equipment contained in metal enclosures. All circuit breakers, metering and control equipment, and interconnecting buswork are contained inside the enclosures
Depending on the configuration,
the equipment may be shipped completely assembled or in sections to be connected
together at the job site. Feeders are normally installed underground from the
switchgear compartments.
Partial enclosure of some of the low-voltage distribution equipment can be implemented to improve the appearance of the substation. The equipment can be furnished in modular form to facilitate installation. Interconnections between modules are usually underground, although overhead bus duct is occasionally used.



Comments
Post a Comment